










Rue des Tanneurs - Superbe appartement en duplex au dernier étage d'une copropriété avec ascenseur.
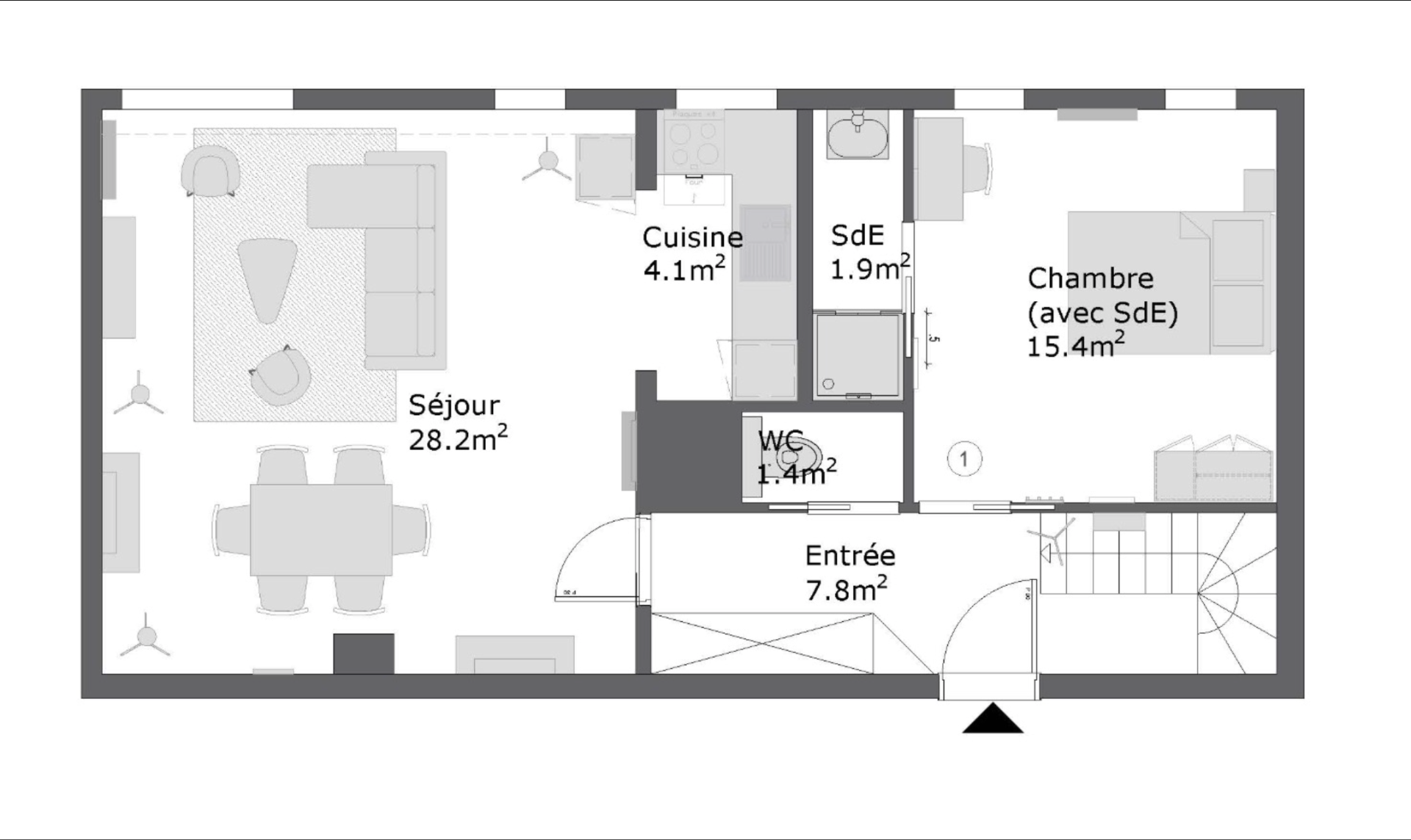
Le bien se compose d'une entrée desservant un bel espace salon séjour ouvert sur une cuisine complètement équipée et aménagée, une chambre avec salle de douche et un WC séparé.
A l'étage de l'appartement, 4 belles chambres, deux salle de douches et un WC séparé.
Bien rare sur le secteur.
Ce bien est soumis au statut de la copropriété. Nombre de lots : 59. Pas de procédure en cours. Charge annuelles : 2760 €. Consommation énergétique : Classe C.
| RÉFÉRENCE : | AMXS |
| TYPE : | Appartement |
| PRIX : | 469 000 € |
| Honoraires inclus 4.222% 19 000 € TTC à la charge de l'acquéreur, Prix net vendeur 450 000 € | |
| CHARGES : | 230 €/mois (2760 €/an) |
| VILLE : | LILLE |
| QUARTIER : | HYPER CENTRE |
| SURFACE : | 120.22 m² |
| CHAMBRES : | 5 |
| EXTÉRIEUR : | NON |
| PARKING : | NON |
| NBR LOTS : | 59 |
| PROCEDURES : | Pas de procédure en cours |
| Accès gares via : | Métro, Bus, A pieds |
CLASSE ÉNERGIE :
| |
| * en kWhan/m².an |
| |
| **Gaz à effet de serre en KgeqCO2/m².an |
Estimation des coûts annuels d'énergie du logement entre 1 580€ et 2 180€/an (date de référence 01/01/2023)









